

Building Forward Updates from Pastor Jacob
A Note from Pastor Jacob
Dear DCC Family,
If you’ve been around our Church lately, you know this to be true: we are running out of room. We are seeing record crowds, experiencing unprecedented growth, and decisions made for Jesus every Sunday.
As exciting as this is, it’s imperative we take steps to create more space so we can reach more people for Jesus.
Today, I’m excited to announce the launch of our capital campaign Building Forward: To Lead More People Into A Growing Relationship With Jesus.
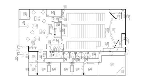
Phase One involves adding a 3,500 sq. ft. Family ministry wing, giving adequate space to reach the next generation for years to come.
Phase Two involves renovating our campus, doubling auditorium seating and optimizing space for key ministries like Celebrate Recovery and Small Groups.
Our aim is to: Create dynamic environments for the next generation to grow in their relationship with Jesus, make room for people in our community to come and worship Jesus, and meet current and future needs as we fulfill our vision of leading people into a growing relationship with Jesus.
Join us on March 17th, at the close of our Nehemiah series, as we launch this effort. Your contribution, regardless of size, matters in spreading the good news of Jesus. Your support and prayers mean the world as we embark on this exciting chapter.
If you’ve been around our Church lately, you know this to be true: we are running out of room. We are seeing record crowds, experiencing unprecedented growth, and decisions made for Jesus every Sunday.
As exciting as this is, it’s imperative we take steps to create more space so we can reach more people for Jesus.
Today, I’m excited to announce the launch of our capital campaign Building Forward: To Lead More People Into A Growing Relationship With Jesus.
Phase One involves adding a 3,500 sq. ft. Family ministry wing, giving adequate space to reach the next generation for years to come.
Phase Two involves renovating our campus, doubling auditorium seating and optimizing space for key ministries like Celebrate Recovery and Small Groups.
Our aim is to: Create dynamic environments for the next generation to grow in their relationship with Jesus, make room for people in our community to come and worship Jesus, and meet current and future needs as we fulfill our vision of leading people into a growing relationship with Jesus.
Join us on March 17th, at the close of our Nehemiah series, as we launch this effort. Your contribution, regardless of size, matters in spreading the good news of Jesus. Your support and prayers mean the world as we embark on this exciting chapter.


CAPITAL CAMPAIGN
PHASE 1: $660,000
Phase one will be adding 3,500 sq. ft. along our front
parking lot for a Family Ministry Wing.
This will quadruple our current environments, giving
us adequate space to share Jesus with the next
generation for many years to come.
PHASE 2: $115,000
Phase two will be renovating our current campus.
This will allow us to double the seating capacity of
our auditorium provide some much needed updates,
and maximize our current space for ministries like
Small Groups and Celebrate Recovery.


WAYS TO GIVE

DCC App

Online Giving

